Chiamaci: 0364 92356 - Email: info@immobiliareadamello.it

(rif.TEM42) Baita montana

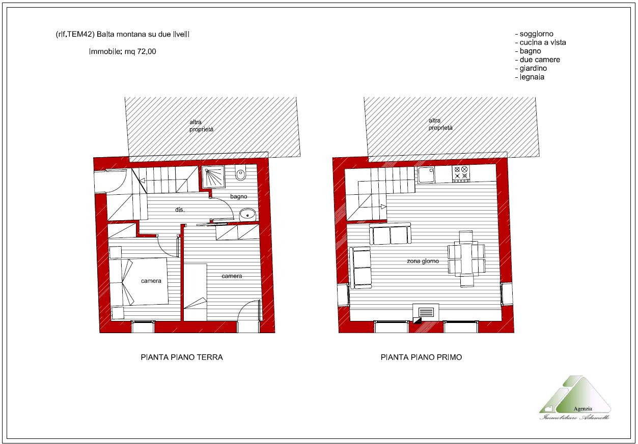
Esclusiva baita montana, completamente arredata, di 72 mq, disposta su due livelli, composta al piano terra da una camera matrimoniale, una camera con tre letti, un bagno e al piano primo da un ampio soggiorno con angolo cottura. Compreso di giardino di mq 20,00 e legnaia di mq 25,00. Situato a poche centinaia di metri dalle piste da sci del comprensorio Adamello Ski con incantevole panorama sulla val d’Avio.

Ubicazione

Richiedi informazioni:




*Richiesto
Trattamento dei dati personali (Leggi l'informativa)

Dati Tecnici

  • Ubicazione: Temù
  • Superficie: 72 mq
  • Locali: 3
  • Stanze da letto: 2
  • Bagni: 1
  • Caminetto: No
  • Balcone: No
  • Terrazza: No
  • Giardino:
  • Arredato: Si
  • Ascensore: No
  • Garage: No
  • Riscaldamento: Autonomo
  • Condizioni: Usato
  • Anno di costruzione: 2009
  • Consegna: A rogito
  • Prezzo: Trattativa riservata

Classe energetica

Ubicazione:

loc. Mezzullo, 25050 Temù BS
Back to Top