(rif.TEM38) Appartamento su tre livelli
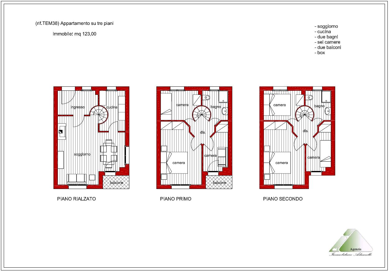
Appartamento di 123 mq disposto su tre livelli, composto al piano rialzato da ingresso, soggiorno con caminetto, cucina e balcone, al piano primo da tre camere, balcone bagno e al piano secondo da tre camere e un bagno. Situato all’interno di un ampio parco con vista panoramica sulla val d’Avio.
Galleria Fotografica
Richiedi informazioni:
Dati Tecnici
- Ubicazione: Temù
- Superficie: 123 mq
- Locali: 8
- Stanze da letto: 6
- Bagni: 2
- Caminetto: Si
- Balcone: Si
- Terrazza: No
- Giardino: Sì (Condominiale)
- Arredato: Si
- Ascensore: No
- Garage: Si
- Riscaldamento: Termoautonomo
- Condizioni: Usato
- Anno di costruzione: 1970
- Consegna: A rogito
- Prezzo: Trattativa riservata
Classe energetica
G > 298,00 kWh/mq annuo








Comments are closed.