Residenza La Fontana
Residenza La Fontana situata nella caratteristica località di Lecanu a soli 600 metri dal centro di Temù, è formato da nove unità abitative dotate di posti auto coperti e scoperti. Gli appartamenti, bilocale e trilocali di varie metrature, sono caratterizzati da ampie vetrate, balconi e terrazzi con incantevole panorama sulle Alpi. Il complesso è stato costruito secondo i più elevati standard in materia di risparmio energetico, con finiture di pregio in legno e pietra locale.
Galleria Fotografica
Richiedi informazioni:
Dati Tecnici
- Ubicazione: Temù
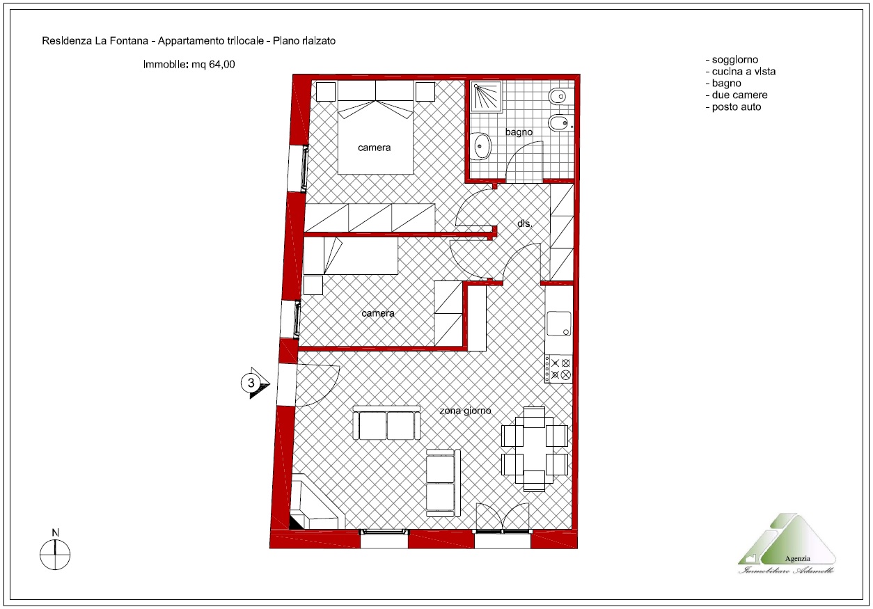
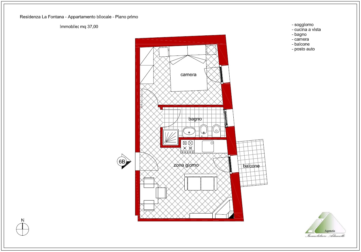
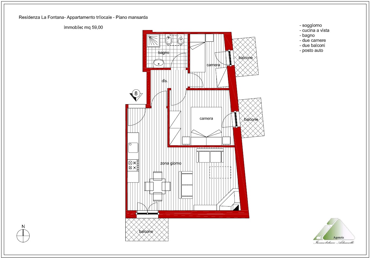
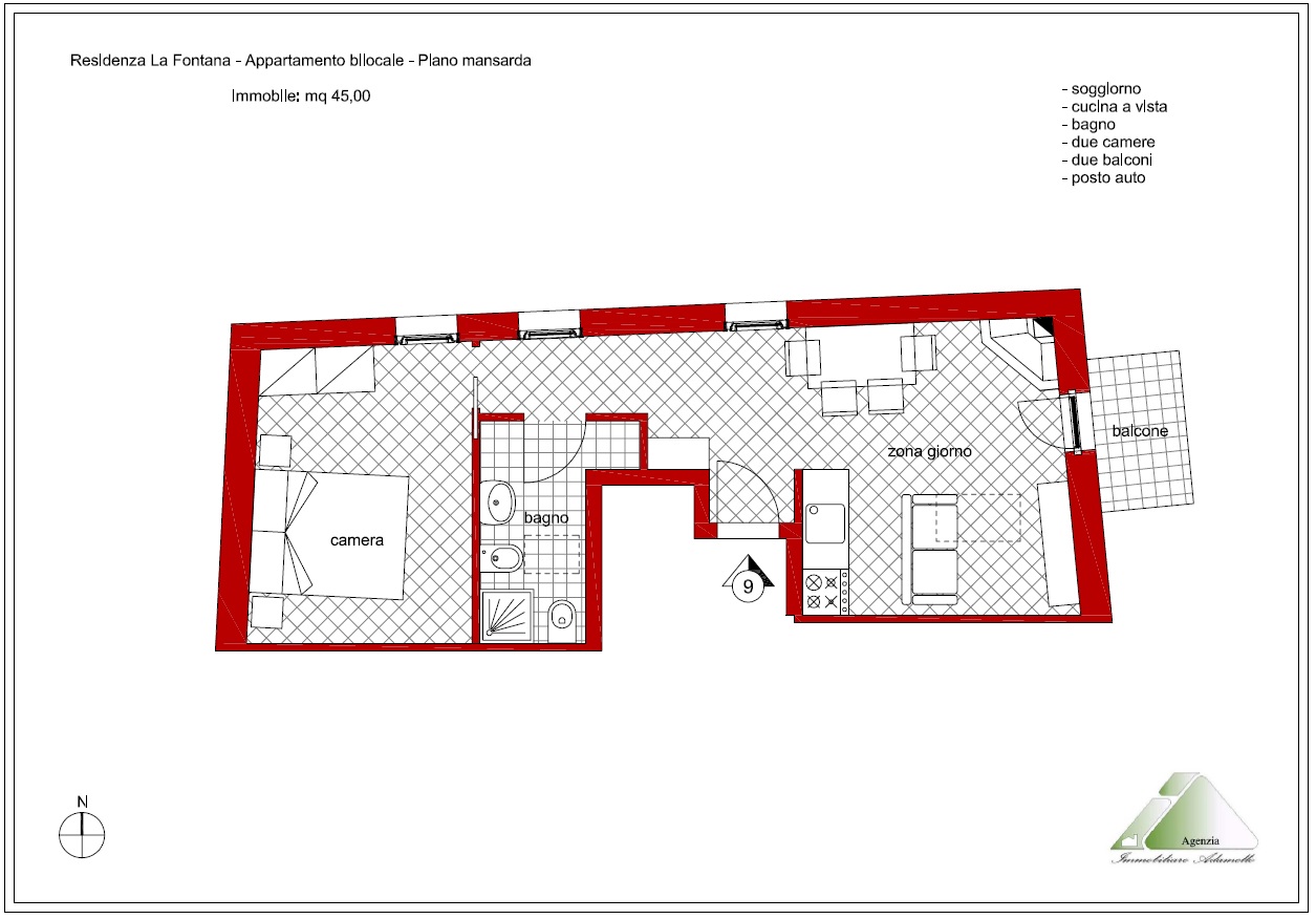
- Superficie: da 37 mq a 65 mq
- Locali: da 2 a 3
- Stanze da letto: da 1 a 2
- Bagni: 1
- Caminetto: Si
- Balcone: Si
- Terrazza: Si
- Giardino: No
- Arredato: No
- Ascensore: No
- Garage: No
- Riscaldamento: Termoautonomo
- Condizioni: Nuovo
- Anno di costruzione: 2008
- Consegna: A rogito
- Prezzo: da € 98.000,00
Classe energetica
D < 198,00 kWh/mq annuo




















Comments are closed.